01
上海奉贤区老年大学
作为一个上海市奉贤区的民生项目,能被选址于奉贤区政府所在地南桥镇中心一个这么优越的地段——江海路的原奉贤中医院地块——是难能可贵的。因此,最直接的问题就是用地紧张。
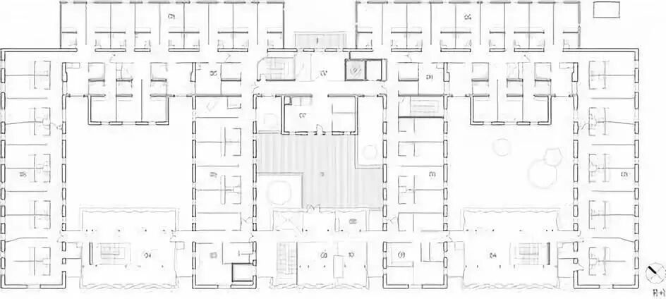
但高层塔楼建筑并不是老年建筑最适合的形态,我们团队根据基地特有的横向性设计了一个东西撑满的大平层建筑,形成了最大化的标准层,并试图保留现状已经生长了几十年的一排大香樟树作为对基地的呼应——断开主楼形成中庭,将主楼分为东西两栋。
然后在跨越中庭的两条回廊的联系下,再形成一个顺畅的水平交通,而保留的香樟树列加上铝穿孔板覆盖的室外中庭与东西两楼典雅的风格保持差异。
设计方案里,建筑平面力求平和,没有大型的凹凸造型,完全是八个平层、东西两幢构成了整栋建筑,只是局部每两层有一个小挑空的电梯厅。
由于老年大学除了普通教室以外,有大量的舞厅、剧场、书场、阶梯教室、大会议室、健身房等大型无柱或挑高空间,在考虑结构模数与交通组织整齐合理的前提下,平面布局就形成了“小空间教室围绕大空间功能教室”的回字型整体格局,结构布局就是“外圈框架梁板柱完整作为小空间”而“内圈部分抽层减柱作为大空间”的整体结构。
二是作为设计起点的那排保留香樟树:在被保留了整个设计阶段之后,随着基坑开挖和维护的造价测算,那排树也因为造价与施工难度而被悄然移去,作为最后知道这件事情的建筑师,我在遗憾之余强烈的要求建设方——在中庭移种回来三棵巨大的银杏树。
外立面本想采用粗粝的面砖装饰,但是在中国的外墙保温面层做法中,面砖几乎已经被写进了黑名单,最后在用真石漆经过了十数遍小样的制作后,才形成了现在的仿面砖的结果。
中庭连接体采用了钢结构加金属瓦楞穿孔板作为典雅风格的对比,但也透着古典均衡的秩序,大概只有东西两个入口超过六米的大悬挑透露着一点现代主义的张狂——但尽管如此,悬挑部分的顶板装饰,依然很小心的向路易斯·康致了个敬。
02
巴黎疗养院
附属老年人医院(EHPAD)的建设非常紧凑。它与现有建筑“共存”。它的目标是强调这个建筑物的存在是这个新的街区的一个非凡的设施,向城市开放,并在建筑物的后面提供一个大花园,使整个场地呼吸。
建筑师以简洁,内敛而坚决的设计手法介入建筑。三个抽象的白色体量作为生活空间,被安置在建筑的四个侧翼之间。透明与磨砂玻璃相互穿插而成的双层立面面对着城市,内部的生活场景也随之忽隐忽现。
对现有建筑物的干预既简单又有限,内敛和自信。三个白色抽象亭为干预提供了清晰的解释。它们位于机翼和主机生活空间之间。它们向城市开放,采用双层外观,由透明和磨砂玻璃制成。
我们可以通过的宽敞大厅,公共空间伴随着多个庭院,并可以看到后面的花园。当天的行政和接待处位于底楼,可通过大型开放式楼梯直接进入。客房围绕着大露台而建。它允许步行和访问每个级别和安全的户外区域。

建筑师对原有建筑体量进行了大规模的改动和修正他们首先拆除了北侧的三栋附属建筑,为后侧大花园的建设腾出了空间;然后通过注入混凝土砂浆,加固保留建筑物的地基部分;接着将原有建筑内部的垂直交通空间拆除重设,以契合全新的建筑流线组织;最后扩大走廊部分,让空间适应全新的建筑功能。
玻璃幕墙外挂在楼板的顶端,南向立面的双层玻璃幕墙结构隔热保温性能极佳,保证了室内公共空间温度的恒定。每一层的起居和用餐空间都拥有双面采光,空间明亮而舒适。新建建筑的空间尺度与形式都和原有建筑结构十分相衬,整体空间看起来均衡而和谐。
朝南的外立面设计有双层玻璃“皮肤”,允许内部公共空间,地板客厅和餐厅的自然热调节在城市一侧和内部庭院侧广泛照亮。它们的尺寸与现有模制品和体积的高度完美匹配。
而在建筑的北侧空间,建筑的外立面得到了修复,砖块的肌理展露无遗,而外侧的混凝土体量让立面层次更为丰富。在建筑纵向体量间扩建体量的设计手法不仅保留了建筑原有空间格局的可读性,同时也为医疗养老院带来了极富特征的空间形象。
因此,对于现有墙壁的每个交叉点,物质被“切割”并涂成白色,在循环北部的现有墙壁已经被保存并且分阶段显示砖纹理并形成混凝土补充物。建筑视图增加了在现有建筑物的纬纱上滑动或附着在其上的体积,从而保持了建筑物的原始可读性,并为依赖老年人医院(EHPAD)创建了一个强有力的身份。
03
法国依赖性老人之家与养老院
这家护理和养老院建在奥尔贝克村附近诺曼底博物馆的中心。建筑沿着山坡的倾斜曲线,从山谷可以看到。该建筑旨在改善生活和步行区,它的优势在于它与景观的关系:坐落于山峦之间景色秀丽处,绿色撞红色的炫彩动感养老院。
为了减少这座宏伟建筑的视觉影响,我们认为最好将其分开。我们通过使用绿色实现了预期的效果,结果是建筑物融入了更大的景观并反映了场地的乡村性质。悬垂的底面和底座的白色墙壁产生轻盈的感觉。
每个生活单元都是建筑不可分割的一部分,并且所有的生活单元都与朝南的山边街道相衔接。这样的布局使得建筑两边都能看见风景,光线在交通流线中穿梭,丰富了景观。
每个生活单元都可以安装在建筑物的一个区域,所有这些都与山脉相连的朝南街道相连。这种布置从一侧到另一侧透过建筑物的视野,灯光点缀交通路线并实现最大的变化。
04
巴黎Clichy Batignolles 生态疗养院
建筑坐落于巴黎Clichy-Batignolles生态区,这里原本是一片被巴黎人遗忘的铁路飞地,现在被重新利用起来。这个重要的市政项目展望和回应了日益增长的住房需求,也为21世纪建造持久且多功能的城市空间铺平道路。
由于各种各样的项目需求,建筑师必须找出一个方案将养老院,社会住房,个人住宅,宗教中心,零售商业中心这些项目融为一体。这些项目和谐共生,催化出丰富多样且具有象征意义的高质量空间,为城市的成长做出了贡献。
此项目同时以具有说服力并创新的建筑策略满足了此地块高城市密度和新环境下催生出来的种种需求和挑战。
05
Lankry architectes退休之家扩建项目

新建筑中的每一个房间都拥有宽敞明亮的阳台,与此同时,每一个落地窗外都安置了电动百叶窗,使得居住者可以根据需求调节进入室内的光线。

这个项目希望能够提高居民的生活品质。新建筑的空间设计是以大型公寓为原型,通过一个宽敞的共享休息室来组织房间。在此,设计团队使用宽敞的共享空间替代狭窄的走廊,从而创造出宽敞的、对室外景观开放的生活空间。


创造出明亮、舒适、便捷的室内空间
06
Lankry architectes退休之家
养老院项目与Simone Veil医院开发项目都是为了加强城市中心的基础设施建设。这个养老院项目不是封闭的项目,居住者可以与他原本的环境、亲属、家庭、朋友等保持联系。

